Продукты, получаемые на выходе
После термической обработки полимерных материалов остаются зола полукокса, пиролизная жидкость и газ.
Часть газов конденсируется и переходит в жидкое состояние. Жидкость очищают, чтобы превратить её в синтетическую нефть. Она используется как замена природному топливу.
Сухой метод пиролиза
Газ, не прошедший конденсацию, отправляют на дожиг или продают сторонним потребителям. Его можно применять в качестве топлива при выработке электроэнергии на ТЭС.
После переработки покрышек остаётся несгораемый металлокорд, его отправляют на склад для дальнейшей переработки в металлические изделия. Обуглероженный (превратившийся в кокс) остаток используется в промышленности:
- в производстве новых шин и резиновых изделий;
- в качестве красителя при изготовлении лакокрасочных покрытий;
- применяется в качестве сорбента вместо активированного угля;
- служит компонентом жидкого топлива или сам используётся как твёрдое горючее.
Устройство и принцип работы
Особенность пиролизного котла представляет топка. Она разделена на несколько отделов. Первый предназначен для сгорания древесины, кислорода должно быть недостаточное количество. Второй отдел котла служит для сгорания выделяемого газа. Отделения топки разделяются решеткой – колосником. Основное отличие конструкции — в направлении воздушных масс. Они идут вниз. В пиролизном котле для отопления создано сопротивление, оно мешает воздуху свободно двигаться в выбранном им направлении движения. Следовательно, появляется принуждение с использованием дутьевого вентилятора или отсоса дыма.

Пиролизный котел в разрезе
Если посмотрим на схему пиролизного котла на твердом топливе в разрезе, увидим следующее его устройство:
- внизу камера сжигания, закрываемая нижней дверцей,
- на противоположной стенке от дверки патрубок обратной подачи воды,
- выше находится форсунка и канал подачи вторичного воздуха,
- все это накрывает водный теплообменник,
- в центре находится газифицирующая камера,
- дымоходный канал проходит по всей высоте котла за задней стенкой, он выходит в боров,
- дроссель дымохода отделяет его от канала подачи воздуха, который закрывается верхней дверкой, имеющей назначение: загрузка,
- сверху на котле имеется патрубок подачи воды и датчики температурного режима и контроля давления.
Основной принцип работоспособности пиролизного котла – разложение древесины, используется, при этом, способ термический. В дальнейшем продукт сгорания древесины выглядит как твердый уголь в отоплении и улетучивающийся газ.
Сгорание твердого топлива проходит в камере, куда закладываются дрова и где устанавливается высокий температурный режим. При этом, в ней не должно хватать кислородных масс для полного сгорания древесины. Летучий газ, при попадании во вторую камеру, сгорает при достаточно высоком температурном режиме (выше тысячи градусов). В дальнейшем газ отдаст тепло, переходя в дымоход.
Внутреннюю часть пиролизного котла выкладывают огнеупорным материалом, создавая тем самым отличные условия сгоранию древесины. Обкладывается первое и второе отделение топки.
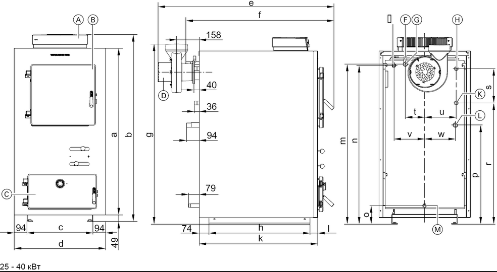
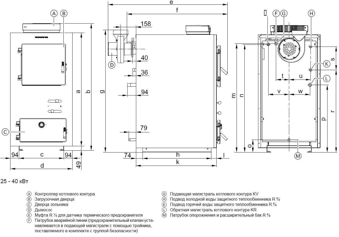
Перед началом сборки пиролизного котла своими руками, надо изучить его строение на чертежах и схемах. На любом чертеже пиролизного котла основой устройства будут: место для жидкости, обменник тепла, топка.

Чертеж самодельного пиролизного котла
С нуля сделать обогревающую конструкцию под силу не каждому, возникают определенные трудности, поэтому в качестве основы рекомендуют взять котел Беляева. Будет хозяин вносить в него изменения или оставит все как есть, индивидуальное дело каждого, также зависит это от его образования, желания пофантазировать, провести эксперимент. Что останется, безусловно, без изменений, так это объем его пространства внутри.

Схема котла Беляева
Пиролизные котлы на твердом топливе и длительного горения, кроме теплоносителя обогрева в виде жидкости, могут использовать потоки горячего воздуха. Циркуляция потоков горячего воздуха в отоплении также хорошо справляется с обогревом жилья.
Рейтинг лучших производителей твердотопливных котлов
Отопительное оборудование данного вида пользуется определенной популярностью. На рынке представлены агрегаты, выпущенные под различными товарными знаками. Внимания заслуживает не только импортная продукция, но и твердотопливные котлы длительного горения российского производства. Предлагаем познакомиться с рейтингом лучших производителей, чтобы было проще ориентироваться в предлагаемом различными магазинами ассортименте.
Оборудование выпускается под различными товарными знаками
Гейзер
Один из отечественных производителей, предлагающий отопительное оборудование различного типа. Твердотопливные пиролизные модели «Гейзер» изготавливаются по инновационным технологиям с использованием высококачественного сырья. Агрегаты отличаются простой исполнения и обслуживания. Широкий модельный ряд позволяет подобрать подходящий вариант для любого строения.
Серия ВП может работать на торфяных и опилочных брикетах, угле и дровах с КПД 85%. Производитель предоставляет двухлетнюю гарантию. Мощность котлов может составлять 10 – 100 кВт:
| Модель «Гейзер» | Мощность, кВт | Масса, кг |
| ВП-6 | 10 | 170 |
| ВП-15 | 15 | 210 |
| ВП-50 | 50 | 650 |
| ВП-65 | 65 | 750 |
| ВП-100 | 100 | 900 |
Котлы пиролизного типа представляют собой цельносварную стальную конструкцию, состоящую из нескольких камер сгорания. Производитель рекомендует использовать поленья диаметром 40÷100 мм, длина которых должна соотноситься с геометрическими параметрами топки. Размер угля не должен превышать 40 мм. Докладка дров или угля должна производиться каждые 8÷12 часов.
Гейзер – надежное оборудование от отечественного производителя
Буржуй-К от завода «ТеплоГарант»
Российский производитель, предлагающий несколько модельных линеек твердотопливных котлов, в том числе мощностью более 140 кВт. Оборудование может использоваться для обогрева частных домов и промышленных предприятий. Производитель предлагает серии Буржуй-К:
Эксклюзив с декоративной внешней отделкой, заказываемой в индивидуальном порядке. Такое отопительное оборудование способно гармонично вписаться в любой интерьер. Мощность котлов данной серии составляет 12÷32 кВт. Для подержания процесса горения возможно использование угля, дров, опилочно-стружечных и торфяных брикетов. КПД достигает 92%. Автоматическое управление. Производитель предоставляет гарантию 2,5 года. Минимальный срок службы 10 лет;
«Буржуй-К Эксклюзив» – стильное решение для любого интерьера
Стандарт. Неприхотливое в обслуживание и надежное отопительное оборудование без эксклюзивной внешней облицовки. Ручной режим управления. Мощность 10÷30 кВт. КПД до 89%;
«Буржуй-К Стандарт» – надежность и простота обслуживания
ТА. Подобен стандарту, но регулировка воздушных потоков и тяги выполняется в автоматическом режиме. Теплоносителя по водяному контуру может двигаться принудительно и естественным образом;
«Буржуй-К ТА»: работа автоматизирован
Модерн. Пиролизные модели с естественной и принудительной циркуляцией теплоносителя. Доступно три модели, отличающиеся по мощности и габаритам.
«Буржуй-К Модерн» – агрегат пиролизного типа
Watch this video on YouTube
Buderus
Немецкое оборудование высокого качества. В модельном ряду «Logano S171 W» представлено четыре агрегата, которые могут использоваться для отапливания частного жилья. Способны работать автономно и составе комплексов. Предъявляют повышенные требования к месту установки. Комплектуются бойлером косвенного нагрева. Современная автоматика упрощает процесс управления. Топочная камера находится в верхней части, а камера дожига в нижней части корпуса. Мощность оборудования 20÷50 кВт.
Buderus – отменное немецкое качество
Viessmann
Немецкая компания предлагает серию «Vitoligno 100-S тип VL1A» – твердотопливные котлы пиролизного типа. Способны работать не только на дровах или угле, но и на газе либо жидкости после установки сменных горелок. Мощность агрегатов составляет 25÷80 кВт.
Для обшивки корпуса используется листовая сталь толщиной 5 мм. Электронный контроллер позволяет задать режим работы. КПД достигает 80%.
Vitoligno 100-S тип VL1A – длительный срок службы гарантирован
Плюсы и минусы
К отрицательным характеристикам твердотопливного котла относят:
- очень высокая стоимость;
- необходимость подготавливать дрова, которые должны быть абсолютно сухими;
- работает от электрической сети.
Несмотря на минусы, у газогенераторного устройства есть и плюсы. Это:
- комфортное тепло с пиролизным котлом;
- достаточно прост в использовании;
- выделяется очень маленькое количество вредных элементов;
- способен довольно долго работать после того, как будет положено топливо;
- можно применять при любом виде системы подачи тепла;
- можно полностью автоматизировать процесс;
- применяется для утилизации таких материалов, как пластмасса, резина и полимеры.
Данный вид твердотопливного кола для отопления в своей особенности конструкции имеет несколько участков: отделения для топки, теплообменник и узел, который подводит воду к устройству.
При самостоятельно сборке пиролизного котла, необходимо правильно сделать схему и чертеж. Затем по ней собрать агрегат, который сразу же можно проверить, а в дальнейшем использовать в быту. Для создания необходимо лишь проследить за герметизацией труб отопления, которые подводят воду, чтобы избежать различных неприятностей в будущем. При правильной сборке котла длительного горения, оборудование очень быстро нагревается до нужной температуры, потратив всего полчаса.

Фото схемы пиролизного котла
Любая газогенераторная машина в своей конструкции содержит две камеры. Одна камера котла служит для наполнения ее необходимым топливом, где происходит разложение на сухие остатки и горючий газ. Он перемещается в следующее отделение. Внутрь оборудования подается дополнительный воздух с помощью специального вентилятора, для того, чтобы эффективнее происходило горение дров. Дым, образующийся в данном процессе, удаляется через установленный дымосос. Камеры отделены между собой колосником, изготовленным из чугуна.
При больших значениях температурного режима и отсутствия кислорода, из древесины выделяется газ, при смешивании его с потоками воздуха происходит нагревание теплообменника до 1200 градусов. После этого тепло передается теплоносителю системы. Отработанные газы выходят через специальную трубу дымохода. В состав входит смесь паров воды и углекислого газа. В дымоходе рекомендуется сделать слой материала, который состоит из минеральной ваты, покрытой сверху специальной фольгой. Он делается для того, чтобы при охлаждении не образовывались деготь и конденсат, которые могут оказать довольно негативное воздействие на трубу.
Все отделения котла на пиролизе оснащены огнеупорочной футеровкой, которая выкладывается из шамотного кирпича. Именно она создается благоприятные условия для сгорания топлива в пиролизном котле.
Конструкция и основные элементы
Пиролизные котлы являются довольно габаритными аппаратами. Загрузочная камера предусматривает использование деревянных заготовок длинной от 38 до 45 см и диаметром от 10 до 25 см, а прессованные брикеты от 3 до 30 см. Отходы деревообработки (опилки, стружка) засыпаются к дровам, но их количество не должно превышать 30 % от объема камеры. Простая компоновка устройства включает в себя:
- загрузочную камеру (она же подготовки сырья) – удаление остаточной влаги;
- камеру газификации – проходит процесс пиролиза;
- колосник – перегородка, разделяющая камеры;
- камеру сгорания – оснащенную форсунками для подачи вторичного воздуха;
- систему дымоходов – удаление продуктов горения и нагрев теплоносителя;
- встроенный теплообменник с патрубками прямой и обратной подачи теплоносителя;
- вентилятор принудительной подачи вторичного воздуха;
- датчики для регулировки эксплуатационных показателей.
Внутри аппарата создается повышенное аэродинамическое сопротивление, что требует применения дымососов либо дутьевых вентиляторов для создания принудительной тяги.
Устройство и принцип работы котла
Ранее было уже сказано, что котлы этого типа имеют камеры. Топка разделена на газифицирующую камеру, в которую осуществляется загрузка топлива и непосредственно — камера сгорания.
На рисунке схеме показано внутреннее устройство твердотопливного котла пиролизного типа

В первую камеру, куда ограничен приток воздуха, загружается топливо. Котел запускается и работает в обычном режиме. При медленном горении топливо начинает пиролизироваться, выделяется древесный газ, который поступает уже во вторую часть топки, в камеру сгорания. С этого момента твердотопливный котел выходит в рабочий режим. Теперь начинается процессы, которые в корне отличают пиролизный тип горения, твердотопливные отопительные котлы длительного горения от процесса прямого сжигания и от традиционных котлов.
В первой камере потери тепла минимизируются. Обычно в моделях твердотопливных котлов длительного горения пространство между первой и второй камерой заполняют колосники, на которые укладывается топливо.
Вторая часть топки — камера сгорания, куда поступает горючий древесный газ. Камера наполняется вторичным, разогретым воздухом. Здесь уже действует принцип двойного дутья.

После выхода котла на нормальный, рабочий режим, доступ воздуха в первую камеру существенно ограничивается. Процесс горения практически прекращается, переходя в состояние тления. Топливо прогорает постепенно. Каждый предыдущий слой топлива в процесс тления постепенно задействует последующий слой. Медленное тление сопровождается постоянным выделением древесного газа. За счет этого процесса, твердотопливные пиролизные котлы еще принято называть котлами длительного горения.
Во второй, основной камере сгорания горит только древесный газ, который при контакте с вторичным воздухом (нагретый до t 3000 С) дает огромное количество тепловой энергии. Только сейчас тепловая энергия вступает в работу, нагревая теплоноситель, циркулирующий в теплообменнике. Т.е в конструкции твердотопливных котлов пиролизного типа подогрев теплоносителя осуществляется не за счет прямого горения твердого топлива, а уже за счет сжигания вторичного продукта горения – пиролизного газа, горючего газообразного вещества. В этом и есть основное отличие котлов данного типа от твердотопливных котлов других видов.
Что подразумевается под названием пиролиз
Пиролиз – генерирование горючего газа и его последующее сжигание, — происходит во всех твердотопливных котлах, в большей или в меньшей степени. Такой же процесс идет и в обычной печи, — при горении дров или угля, в каком-то месте не хватает кислорода, появляется угарный газ CO, затем он находит недостающий кислород и сгорает, выделяя тепло, превращаясь из яда в обычный углекислый газ – CO2.
В качестве экспериментов еще 1950-х годах была разработана схема котельного оборудования, где сначала топливо тлело при недостатке кислорода, затем полученное СО дожигалось во вторичной камере. Но идеи не были воплощены, как не дающие ни каких преимуществ с весомыми недостатками и дорогостоящие.
Теперь же в рекламках ядовитый угарный газ СО называют – «древесный газ».

Как сделать своими руками?
Чертеж:

При выборе схемы конструкции котлоагрегата, в первую очередь, нужно обратить внимание на то, сколько и каких материалов потребуется на изготовление того или иного вида этого оборудования. Как правило, при изготовлении пиролизного теплогенератора, нужны будут следующие виды материалов:. Как правило, при изготовлении пиролизного теплогенератора, нужны будут следующие виды материалов:
Как правило, при изготовлении пиролизного теплогенератора, нужны будут следующие виды материалов:
- металлические листы толщиной 4–6 мм;
- комплект профильных труб толщиной 3 мм;
- набор обычных труб различного диаметра;
- стальные пруты;
- болты и гайки;
- асбестовый шнур;
- шамотный кирпич;
- температурный датчик;
- устройство терморегулирующей автоматики;
- центробежный насос;
- нагнетающий вентилятор;
Важно знать! Количество указанных выше материалов должно подбираться согласно выбранной схеме пиролизного котла.

- углошлифовальная машинка (болгарка);
- отрезные и шлифовальные круги;
- сварочный аппарат;
- электроды;
- электрическая дрель;
- трубогиб;
- набор ключей;
Сборка пиролизного котлоагрегата осуществляется в последовательном выполнении следующих видов работ:
- С помощью болгарки вырезаются, согласно схеме агрегата, все необходимые детали.
- Применяя сварочный аппарат, все детали свариваются между собой в единую конструкцию.
- Важным этапом монтажа является изготовление теплообменника, для этого, трубу необходимого диаметра скручивают в змеевик с помощью трубогиба.
- Между соединительными элементами агрегата, как правило, устанавливают асбестовый шнур.
- Для увеличения температурного режима внутри камеры сгорания, котел снаружи облицовывают шамотным кирпичем.
- В нижней части агрегата с наружной стороны, должен быть вмонтированный центробежный вентилятор, который будет обеспечивать полноценное функционирования устройства.
- На заключительном этапе монтажа, монтируются датчик и терморегулирующие узлы, которые будут отвечать за бесперебойную и стабильную работу агрегата.
После того, как выполнены все монтажные и сварные работы, подключены все узлы котлоагрегата, можно приступать к первичному запуску.
При этом, важно понимать, что при первом запуске пиролизного котла, не должно возникать никаких запахов угарного газа. Блиц-советы:. Блиц-советы:
Блиц-советы:
- Перед тем, как покупать агрегат этого вида, прежде всего, подумайте о том, какой вид топлива будете использовать.
- Для стабильного функционирования котлоагрегата, выполните качечественный монтаж дымоходной системы.
- Количество топлива, которое должно быть загружено в камеру сгорания, четко должно быть согласовано с эксплуатационными характеристиками этого вида оборудования.
Температурные уровни пиролиза
к меню
Низкотемпературная степень
Это пиролиз, температура которого составляет 450 – 900 градусов по Цельсию. В этом процессе дымовой газ выделяется минимально, а остатки сырья, смолы – максимальны. Количество утиля (отходов) наибольшее. Считается экологичным.
к меню
Высокотемпературная степень
Это пиролиз, температура которого составляет более 900 градусов по Цельсию. При этом процессе дымовой газ выделяется максимально, а смола – минимально. Количество утиля – наименьшее.
В результате пиролиза, из отходов можно получить энергию (тепловую и электрическую), мазут, топливо (солярку, автобензин). Но при условии детальной отсортировки мусора.
к меню
Подходящие отходы для переработки
Преимущество пиролизных установок в том, что они пригодны для безопасной утилизации широкого спектра материалов, включая трудноразлагаемые вещества.
- ТБО: бумага, пластмасса, стекло, кости и т.д;
- отходы деревообработки: щепки и опилки;
- пластик и полимерсодержащие отходы (бутылки, полиэтиленовые пакеты);
- иловые слои, образующиеся в коллекторах и канализациях;
- сланец и торф;
- автомобильные покрышки, резиновые отходы;
- отходы аграрно-промышленного комплекса;
- сельскохозяйственные отходы (шелуха зёрен, скорлупа орехов и т.п.);
- отходы медицинских учреждений
- нефтешламы;
- растительные отходы, включая водоросли.
Котлы верхнего горения
Один из вариантов пиролизного устройства – котел верхнего горения. Принцип действия этих двух агрегатов очень схож.
Точно так же в топку загружают большое количество твердого топлива низкой влажности, воздух нагнетают принудительно и обеспечивают тление топлива при пониженном количестве кислорода. Задвижку, которая регулирует поток кислорода, устанавливают в нужном положении.
Схема устройства котла верхнего горения. Топка такого котла имеет глухое дно, частички продуктов горения удаляются через дымоход (+)
Но котлы длительного горения не имеют ни зольника, ни колосника. Дно представляет собой глухую металлическую плиту. Такие котлы устроены так, чтобы древесина сгорала полностью, а оставшееся в топке малое количество золы выдувалось воздухом.
Такие устройства отличаются высоким КПД и также работают при температурах более 1000°С.
Основная особенность таких устройств – они действительно обеспечивают длительный срок работы при полной загрузке. Топливная камера в таких устройствах обычно выполнена в форме цилиндра.
В нее сверху загружают топливо, сверху же, по центру, нагнетается необходимый для горения воздух.
В котлах верхнего горения устройство для нагнетания воздуха – это подвижный элемент, который опускается вниз по мере прогорания дров
Таким образом осуществляется медленное тление верхнего слоя топлива. Топливо постепенно сгорает, его уровень в топке понижается. Одновременно изменяется и положение устройства для подачи воздуха в топку, этот элемент в таких моделях подвижен и он практически лежит на верхнем слое дров.
Второй этап горения осуществляется в верхней части топки, которая отделена от нижнего отделения толстым металлическим диском. Горячие пиролизные газы, образовавшиеся в результате сгорания топлива внизу, расширяются и перемещаются вверх.
Здесь они смешиваются с воздухом и сгорают, дополнительно передавая теплообменнику солидную порцию тепловой энергии.
Балка, удерживающая диск, который разделяет камеру сгорания на две части, как и сам этот диск, в процессе работы котла верхнего сгорания постоянно находится под воздействием высокой температуры. Со временем эти элементы сгорают, их придется периодически заменять.
На выходе из второй части топливной камеры обычно установлен регулятор тяги. Это автоматический прибор, который определяет температуру теплоносителя и в зависимости от полученных данных регулирует интенсивность движения горючего газа. Он защищает устройство от возможного перегрева.
Стоит отметить, что наружный теплообменник в таких котлах реагирует на изменение скорости циркуляции жидкости в теплообменнике, т.е. на колебания температуры. На поверхности устройства сразу же образуется слой конденсата, который вызывает коррозию, особенно если речь идет о стальных котлах.
Предпочтительнее брать устройство из чугуна, которое значительно лучше сопротивляется подобному воздействию.
Хотя топливо в пиролизных котлах длительного горения должно сгорать без остатка, на практике так бывает не всегда. Порой пепел спекается, образуя частички, которые трудно удалить с помощью потока воздуха.
Если в топке накопится большое количество таких остатков, может наблюдаться заметное снижение тепловой отдачи агрегата. Поэтому котел верхнего горения следует периодически все же прочищать.
Особенность устройств этого типа в том, что по мере сгорания топлива его можно догружать, не дожидаясь сгорания всей закладки топлива. Это удобно, когда нужно избавиться от горючего бытового мусора.
Существуют также разновидности котлов верхнего горения, которые работают не только на древесном топливе, но и на угле. Сложные узлы автоматического управления в пиролизных котлах этого типа отсутствуют, поэтому серьезные поломки наблюдаются крайне редко.
Конструкция котла верхнего горения позволяет загружать топку лишь частично, если это необходимо. Однако в этом случае выполнить розжиг верхнего слоя топлива может быть не просто. Само топлива должно быть подсушенным, дрова из открытой поленницы для такого котла не подходят.
Топливо крупных фракций также не следует использовать для этого вида техники, т.е. дрова придется обязательно колоть на небольшие части.
Как сделать пиролизный котёл своими руками пошаговая инструкция и чертежи

Как и из чего своими руками собрать пиролизный котёл для бытового использования своими руками – тема предлагаемой статьи-инструкции.
Принцип работы пиролизных котлов
Высокая эффективность, следовательно, экономичный расход топлива в подобных установках достигается разделением камеры сгорания на 2 отсека. Конструктивных исполнений пиролизных печей несколько. Например, такое.

Верхняя камера. В нее производится загрузка топлива и его горение. Особенность в том, что необходимо обеспечить недостаток кислорода. При таком условии замедляется процесс разложения продукта, а по сути, происходит лишь его обугливание (экономичность расходования!) и инициируется повышенное газообразование. Собственно, это и есть то, что называется пиролизом.
Нижняя камера. В нее поступают летучие вещества из 1-го отсека, которые за счет дополнительной подачи воздуха сгорают, выделяя тепло. Лишь незначительная часть его тратится на поддержание процесса пиролиза, а все остальное идет на нагрев теплоносителя.

Рисунок хорошо иллюстрирует основные рабочие циклы пиролизного котла.

В некоторых моделях камеры располагаются на одном уровне.

Собственно, дело не в инженерном решении, а в сборке установки, в которой можно реализовать пиролизный процесс, то есть обеспечить длительное горение топлива. А выбор конкретной схемы – на усмотрение мастера.
Особенности изготовления пиролизного котла
Материалы
Корпус пиролизного котла лучше делать из листовой стали (от 2 мм, в зависимости от расчетной мощности). Модели котлов, которые собираются из толстостенной трубы, вряд ли подходят для организации отопления частного дома. В основном такими установками обогреваются различные подсобки, гаражи или времянки.

Более габаритные пиролизные котлы монтируются по образцу большинства теплогенераторов – прямоугольной формы. В некоторых случаях, если модель мощная, ее стенки (изнутри) целесообразно выложить шамотным кирпичом.

Размеры пиролизных котлов
Один из самых интересных и «таинственных» вопросов по данной теме. Все расчеты делаются применительно к конкретному дому, его отопительной системе, со всеми ее нюансами, схемами и так далее. Автор не будет приводить математических выкладок и просит поверить на слово. Проектирование пиролизного котла лучше поручить специалисту. Разработка документации стоит денег, но в любом случае это обойдется дешевле приобретения установки промышленного изготовления.
Специфика эксплуатации пиролизных котлов
Без знания некоторых нюансов использования такого оборудования приниматься за изготовление подобной модели теплогенератора не имеет смысла.
Довольно «жесткие» критерии влажности сжигаемого топлива. Например, для дров максимальное значение – 33±2%. С чем это связано? Повышение температуры инициирует испарение влаги, содержащейся в продукте. Естественно, пар начнет смешиваться с пиролизными газами и негативно влиять на интенсивность процесса горения. Применение влажного топлива резко снижает КПД установки.
Не все разновидности твердого топлива подходят для сжигания в пиролизных котлах. С учетом специфики их работы, можно использовать лишь материалы, характеризующиеся высоким газообразованием при сгорании. Недостаток летучих веществ сказывается на эффективности эксплуатации пиролизных моделей. Проще говоря, дров расходуется много, а толк минимальный.
В заключение можно указать, что самая дешевая модель (причем небольшой мощности) стоит в пределах 48 000 рублей. В заключение можно указать, что самая дешевая модель (причем небольшой мощности) стоит в пределах 48 000 рублей. И еще не факт, что такой пиролизная установка полностью устроит хозяина. Например, габаритами в соответствие с выбранным местом для монтажа. Если подумать, то изготовление пиролизного котла своими руками, по индивидуальным чертежам – неплохое решение проблемы отопления частного дома, особенно если невозможно его подключение к магистрали газоснабжения.


















































