Виды устройства, которые можно создать самому
Котёл следует начинать строить с задумки. Первым этапом должен стать выбор вида создаваемого изделия. В ряде случаев можно подобрать вид по имеющимся деталям, по особенностям конфигурации оборудования, а также по личным потребностям создателя. Только после рассмотрения собственных возможностей, следует подбирать чертежи. В конечном результате следует выбрать котёл длительного горения по параметру направления сгорания топлива:
- Нижнее. Топливо поджигается снизу (таким способом работает большинство котлов).
- Верхнее. Топливо загорается вверху и постепенно сгорает к нижнему уровню.
Котлы с нижним направлением горения можно разделить на два вида:
- Традиционный. Подаваемые твердотопливные элементы возгораются и сжигаются в одном отделении. Выход дыма осуществляется с помощью стандартной трубы для вывода дыма.
- Шахтные. Здесь имеется две камеры. Одна служит для подачи топлива, а другая является теплообменником.
Также рассматривается несколько вариантов по способу сжигания. Котёл может иметь стандартную схему поглощения топлива. Здесь процесс осуществляется таким же способом, как и при стандартных обстоятельствах. Ярким примером является печь в частном доме. Котёл с пиролизным сжиганием имеет особую схему, которая подразумевает выделение древесного газа с последующим его воспламенением.
Немаловажным отличием является и теплообменник. Этот элемент изготавливается по особой технологии. Существует несколько способов решения вопроса с его созданием. Помимо особенностей теплообменника котёл для процесса горения может использовать уголь и дрова, или только один из представленных вариантов топлива. В этом случае следует заранее рассчитать резонность использования определённого топлива. От этого выбора будет зависеть конструкция самого изделия.
На что смотреть при выборе котла?
Из-за просто огромного спроса на котлы, работающие на одной закладке дров свыше 12 часов, производители активно пополняют рынок новыми моделями. Как результат, практически у каждого покупателя возникает ряд вопросов, которые связаны с выбором производителя, конструкции, типа топлива.
К тому же далеко не каждый сможет правильно рассчитать мощность. Чтобы не столкнуться с этими проблемами в магазине, разберемся со всеми нюансами подробнее.
Виды оборудования по конструкции
На рынке представлены три разновидности котлов, работающих на твердом топливе. К ним относятся классические модели, пиролизные, а также пеллетные агрегаты. Первый тип станет отличным выбором, как для дома, так и для промышленного или коммерческого использования.
К достоинствам таких моделей следует отнести:
- Универсальность. Оборудование может работать на отопительных гранулах (пеллетах), дровах, торфе и на угле.
- Многофункциональность. Классические котлы отлично подходят не только для обогрева помещения, но и для нагрева воды.
- Эффективность. КПД представленных устройств в большинстве случае варьируется в пределах 80-85 %. Это позволяет использовать их, как в качестве основного источника тепла, так и в роли дополнительного.
Пиролизные модели чаще всего используются для подогрева воды. Работает такого рода устройства на органическом топливе.
Коэффициент производительности пиролизных котлов преимущественно зависит от качества используемого горючего. Наиболее оптимальным выбором являются брикеты, пеллеты, а также бурый уголь
Следует отметить, что пиролизные котлы достаточно требовательны к влажности топливного сырья. Если этот показатель будет выше 25-35 %, то эффективность обогрева значительно снизится.
Третья вариация котлов длительного горения была запатентована в Европе относительно недавно. Но за довольно короткий срок такие устройства завоевали признание среди сотен тысяч покупателей.
Работают пеллетные котлы на древесных гранулах. Изготавливается топливо из спрессованной стружки, опилок, а также ряда других видов отходов деревообрабатывающей промышленности.
К преимуществам представленного вида относят:
- долговечность – срок эксплуатации устройства в среднем составляет больше 20 лет;
- автономность – прибор самостоятельно и довольно хорошо поддерживает указанную владельцем температуру;
- эффективность – КПД моделей на пеллетах достигает 90 %.
Что касается недостатков, то выделяется только один – высокая и недоступная для многих цена. Но этот минус целиком окупается простотой обслуживания и производительностью оборудования.
С особенностями работы и эксплуатации твердотопливных котлов ознакомит статья, посвященная этому интересному вопросу.
Как правильно рассчитать мощность?
Если нужно определиться с производительностью котла, важно учитывать площадь, качество утепления стен, вид используемого топливо, а также длину обогревающего контура. Расчеты можно в значительной мере упростить
Для этого нужно лишь пользоваться следующей формулой:
1 кВт на 1 м2 помещения.
При этом высота потолков не должна превышать 3 метра. Более удобным вариантом будет воспользоваться при расчете специальной таблицей. Ниже представлена одна из них.
| Мощность котла | Площадь обогрева, кв. м. |
| 15 кВт | до 150 |
| 20 кВт | до 200 |
| 30 кВт | до 300 |
| 50 кВт | до 500 |
| 70 кВт | до 700 |
С ее помощью можно за считанные минуты узнать подходящую мощность. При этом единственный параметр, который вам понадобится, – площадь помещения в метрах кубических.
Тип регулятора и ценник
Если у вас в доме наблюдаются постоянные перебои в электрической сети, то целесообразно будет выбрать котел с механическим регулятором. Он не нуждаются в подаче тока, так как его принцип действия основан на циркуляции воздуха естественным путем.
Автоматика подойдет тем, кто не хочет лишний раз заморачиваться и тратить свое время на поход в котельную. Такого рода регулятор нагнетает воздух при помощи вентилятора.
Разумным выбором будет покупка обогревателя у официального дилера или напрямую у производителя. Это позволит не только приобрести товар по разумной цене, но и получить длительную гарантию и рассчитывать на сервисное обслуживание в случае поломки агрегата
Стоимость обогревательного оборудования во многом зависит от материала, из которого изготовлено устройство, бренда, а также мощности
Важно понимать, что такого рода техника покупается на десятилетия. Поэтому даже не смотрите в сторону дешевых моделей
Помните – эффективный котел не может быть дешевым.
Как сделать своими руками котел твердотопливный длительного горения: чертежи и схемы конструкций
Перед тем, как начать изготовление котла, необходимо определиться с его конструкцией. Ее выбор зависит от назначения агрегата. Если он предназначен для отопления небольшого хозяйственного помещения, гаража или дачного домика, то делать в нем водяной контур не обязательно. Обогрев такого помещения будет происходить непосредственно от поверхности котла, путем конвекции воздушных масс в помещении, как от печи. Для большей эффективности можно устроить принудительное обдувание агрегата воздухом при помощи вентилятора. При наличии системы жидкостного отопления в помещении, необходимо предусмотреть устройство в котле контура в виде змеевика из трубы или другой аналогичной конструкции.
Котел твердотопливный: фото, особенности, устройство, схема обвязки: (прочитать подробнее)
Схема подключения твердотопливного котла к системе отопления.
Выбор варианта зависит и от типа твердого топлива, которое нужно будет использовать. Для отопления обычными дровами требуется увеличенный объем топки, а для применения мелких топливных гранул можно устроить специальную емкость, из которой гранулированное топливо подается в котел автоматически. Для изготовления котла твердотопливного длительного горения своими руками, чертеж можно взять и универсальный. Он подойдет для любого вида используемого твердого топлива.Схема подключения твердотопливного котла к системе отопления
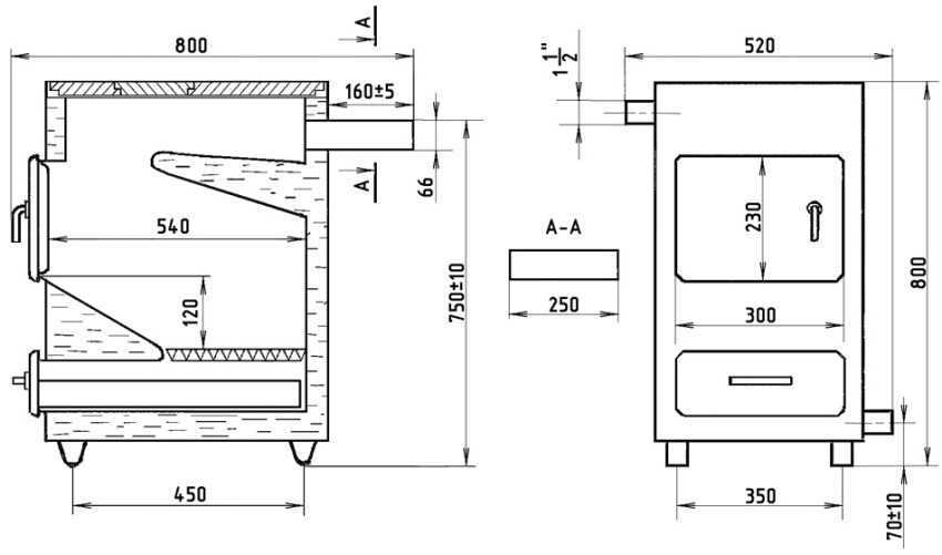
Чертеж твердотопливного котла длительного горения мощностью 25/30/40 кВт.
Расскажем пошагово, каким образом и из каких деталей можно сделать котел отопления на твердом топливе длительного горения по предложенной схеме:
- подготовим место, где будет установлен будущий агрегат. Основание, на котором он будет стоять, должно быть ровным, прочным, жестким и огнеупорным. Лучше всего для этого подойдет бетонный фундамент или толстая чугунная либо стальная плита. Стены нужно обить тоже огнеупорным материалом, если они деревянные;
- собираем весь необходимый материал и инструменты: из которых нам понадобиться аппарат для электродуговой сварки, болгарка и рулетка. Из материалов: листовая 4-мм сталь; 300 – мм стальная труба со стенками 3 мм, а также другие трубы 60 и 100 мм диаметром;
Строение и принцип работы твердотопливного котла.
- для того, чтобы изготовить котел на твердом топливе длительного горения, нужно из большой 300 – мм трубы вырезать кусок длиной 1 м. Можно и немного меньше, если в этом есть необходимость;
- из стального листа вырезаем дно по диаметру трубы и привариваем его, снабдив ножками из швеллера длиной до 10 см;
- распределитель воздуха выполняем в виде круга из листа стали с диаметром на 20 мм меньшим, чем труба. В нижнюю часть круга приваривается крыльчатка из уголка с размером полки 50 мм. Для этого можно использовать и швеллер аналогичного размера;
- сверху в середину распределителя привариваем 60 – мм трубу, которая должна быть выше котла. В середине диска распределителя прорезаем отверстие по трубе, так, чтобы был сквозной туннель. Он нужен для подачи воздуха. В верхней части трубы врезается заслонка, которая позволит осуществлять регулировку подачи воздуха;
Схематическое изображение устройства котла, работающего на твердом топливе.
- в самой нижней части котла изготавливаем небольшую дверку, снабженную задвижкой и петлями, ведущую в зольник для удобства удаления золы. Сверху в котле прорезаем отверстие для дымохода и привариваем в это место 100 – мм трубу. Вначале она идет под небольшим углом вбок и вверх на 40 см, а потом строго вертикально вверх. Проход дымохода через перекрытие помещения должен быть защищен по правилам противопожарной безопасности;
- заканчиваем сооружение котла отопления на твердом топливе длительного горения изготовлением верхней крышки. В ее центре должно быть отверстие для трубы распределителя потока воздуха. Прилегание к стенкам котла должно быть очень плотным, исключающим попадание воздуха.
Чертеж с размерами для создания твердотопливного котла своими руками.
На заметку! Чтобы разжечь, изготовленный своими руками, котел твердотопливный длительного горения, чертеж которого был представлен выше, необходимо: снять крышку и поднять регулятор, заполнить котел топливом доверху и облить его горючей жидкостью, все поставить на место и бросить горящую лучину в трубу регулятора. Когда топливо разгорится, снизить поток воздуха до минимума, чтобы оно начало только тлеть. После этого произойдет возгорание пиролизного газа и котел запустится.
Котел длительного горения — вид в разрезе.
Принцип работы твердотопливных котлов и их устройство
Твердое органическое топливо является самым древним источником энергии для человечества. Отказаться от него полностью, даже в современном мире, невозможно. Тем более, что кроме дров и каменного угля сегодня появилось множество других видов горючих твердых веществ:
- брикеты из торфа – высушенный и спрессованный торф выделяет много тепла при сгорании;
- брикеты из отходов деревообрабатывающего производства – сжатые опилки, стружка и кора деревьев;
- березовый уголь – такой же, как для мангала;
- переработанный мусор со свалок;
- топливные отопительные гранулы – мелкое топливо, полученное прессованием опилок. Могут подаваться автоматически;
- обычные сухие опилки.
Различные варианты сырья для использования в твердотопливных котлах
Ясно, что все это топливо получено путем переработки различных отходов, что решает проблему утилизации на предприятиях и идет в русле «зеленой» экономики.
Полезный совет!Самым доступным топливом, из перечисленных выше, являются древесные опилки. Если вы намереваетесь использовать их для отопления – следите, чтобы они были с влажностью менее 20%. Большие показатели этого параметра не позволят вырабатываться пиролизному газу, так как большая часть энергии нагрева будет идти на просушку топлива.
В результате деятельности человека образуется колоссальное количество отходов, которые могут быть преобразованы в высокоэнергетическое топливо, что и обусловило появление на рынке котлов отопления на твердом топливе длительного горения. В отличии от обычных печей, эти агрегаты работают не на сгорании самого топлива, а на его расщеплении в результате нагревания. В рабочей камере таких котлов сгорают газообразные продукты распада твердого топлива. Такая схема работы является в несколько раз более эффективной, чем обычное сжигание органического топлива. Пиролизный газ, отдает большое количество энергии.
Принцип работы твердотопливного котла длительного горения
Устройство такой газогенераторной установки не очень сложное. Можно даже соорудить своими руками котел твердотопливный длительного горения. Чертеж простейшего варианта выглядит следующим образом:
- закрытый цилиндрический бак, который имеет люк для закладки топлива, поддувало и отверстие для установки дымохода;
- внутри бака расположен распределитель воздуха, который создает завихрение пиролизного газа. Он крепится к подвижной телескопической трубе. Вся эта конструкция, похожая на поршень, давит на топливо сверху. Сгорание газа происходит над поршнем, а топливо тлеет под ним;
- теплообменник встроен в верхней камере, где достигается максимальная температура.
Медленное тление твердого топлива происходит в нижней камере. Оно достигается регулировкой подачи воздуха в поддувало. Выделяемый газ интенсивно горит в верхней камере и нагревает теплоноситель.
Схема системы отопления частного дома с использованием твердотопливного котла
Полезный совет!Не стоит использовать простейшую конструкцию для изготовления котла, который будет обогревать жилой дом на постоянной основе. Для этого нужно, либо приобрести готовое изделие, либо сделать более сложный и надежный вариант.
Котлы на твердом топливе длительного горения могут быть незаменимы в частных домах, в хозяйственных сооружениях, гаражах и теплицах. Особенно они будут выгодны там, где имеется крупное деревоперерабатывающее производство, так как отходы на таких предприятиях отдают практически бесплатно. Необходимы эти агрегаты и в местностях, где бывают регулярные перебои с газоснабжением. У таких установок есть много преимуществ, но существует и один важный недостаток – очень высокая стоимость. Именно поэтому сегодня актуально изготовление своими руками котлов твердотопливных длительного горения. Чертежи для этого можно использовать разной степени сложности. Это зависит от уровня мастерства.
Водяное отопление частного дома своими руками, схемы конструкций. Плюсы и недостатки. Различие естественной и принудительной циркуляции воды.
Как сварить котел отопления своими руками
Схема изготовления котла длительного горения с теплообменником
До того как самому сварить котел отопления, нужно определиться с его конструкцией. Предпочтительно, чтобы она соответствовала современным требованиям к безопасности и эффективности работы. Поэтому в качестве примера будет рассмотрен котел пиролизного типа, изготовленный самостоятельно.
Как правильно сварить котел отопления подобного типа? Помимо сварочного аппарата для этого потребуются следующие материалы и инструменты:
- Листовая сталь, марки которой подбираются из данных таблицы, показанной выше. Для камеры сгорания толщина металла должна составлять 3-4 мм. Корпус можно сделать из стали меньшей толщины – 2-2,5 мм;
- Трубы для изготовления теплообменника. Их оптимальный диаметр 40 мм. Такой размер позволит быстро нагреть теплоноситель. Количество регистров — от 3 до 6;
- Как сварить котел отопления без режущего инструмента? Лучше всего для разрезания листов стали использовать «болгарку» со специальными дисками по металлу;
- Дверцы для топочной камеры и поддувала. Также нужно приобрести чугунные колосники. Это необходимо сделать заранее, так как по размерам комплектующих будут изготавливаться проемы и крепежные части котла;
- Уровень, рулетка и карандаш (маркер) для нанесения разметки;
- Защитный инвентарь – перчатки, маска сварщика, прозрачные рабочие очки и одежда из плотного материала с длинными рукавами.
Для наглядности можно посмотреть, как сварить отопление в частном доме. Видео или фотоматериалы помогут в работе, так как в них наглядно показаны все этапы и особенности их выполнения. Однако это нужно сделать только после составления чертежа и подготовки всех инструментов и комплектующих. Это относится ко всем этапам изготовления комплектующих, так как сварить отопление своими руками, включая котлы, регистры, гребенки, невозможно без правильной схемы.
Важно также подготовить место работы до того как сварить отопление в гараже. Чаще всего процесс изготовления проходит именно в нем. Для начала нужно обеспечить максимальное свободное пространство, убрав лишние предметы
Для начала нужно обеспечить максимальное свободное пространство, убрав лишние предметы.
В целях безопасности также из гаража следует вынести легковоспламеняющиеся жидкости – бензин, масло и т.д. И только после этого можно приступать к работе — сваривать отопление в гараже. Правильная сварка котла отопления заключается в изготовлении двух составляющих – непосредственно корпуса котла и теплообменника.
Теплообменник
Теплообменник для котла отопления
Этот элемент изготавливается до того, как сваривается котел отопления. Впоследствии он будет установлен в конструкцию, которая будет напрямую зависеть от его фактических габаритов.
Конструктивно он представляет собой 2 прямоугольных бака, соединенных между собой трубопроводами. Оптимальная толщина материала должна составлять 3-3,5 мм. Это связано с высокими температурами, которые будут воздействовать на поверхность. Специфику его изготовления можно посмотреть на видео — как сварить отопление в частном доме.
На листах стали делается разметка конструкции согласно чертежам. Сначала вырезается задняя панель и к ней приваривается перегородка для отведения дровяных (угольных) газов. На этом этапе нужно быть очень осторожным, так как сварной шов не всегда может обеспечить должное крепление. Затем к перегородке и задней стенке приваривается боковая и нижняя.
Нужно отметить, что самому сварить котел отопления довольно проблематично. Поэтому эту работу рекомендуется выполнять вдвоем. В особенности это касается этапа установки готового теплообменника. Его патрубки помещаются в заранее подготовленные отверстия, а трубы точечно привариваются к внутренним стенкам котла.
Нередко стоит вопрос — как сварить отопление внутри гаража без принудительной вентиляции. Для этого работы должны проводиться только с открытыми воротами, чтобы обеспечить нормальный приток свежего воздуха.
Основной проблемой самодельных конструкций является низкая эффективность работы. Для увеличения КПД рекомендуется делать двойные стенки, между которыми устанавливается базальтовый огнеупорный теплоизолятор. Сварить подобный котел своими руками для водяного отопления можно, но для этого нужно предусмотреть дополнительный расход материала. Сначала изготавливаются двойные стенки, которые заполняются утеплителем. Затем дальнейшая технология сварки конструкции полностью соответствует вышеописанной.
Принцип работы пиролизных котлов и их особенности
Создавая пиролизные котлы своими руками, люди стремятся сэкономить денежные средства в своем кошельке. Если газовое оборудование стоит довольно дешево, то твердотопливные агрегаты просто поражают своей ценой. Более-менее приличная модель мощностью 10 кВт обойдется в 50-60 тысяч рублей – дешевле провести газ, если рядом проходила бы газовая магистрально. Но если ее нет, то выходов два – приобретать заводское оборудование или делать его самостоятельно.
Изготовить пиролизный котел длительного горения своими руками можно, но сложно. Давайте для начала разберемся, для чего вообще нужен пиролиз. В обычных котлах и печах дрова сгорают традиционным способом – при высокой температуре, с выбросом продуктов сгорания в атмосферу. Температура в камере сгорания составляет порядка +800-1100 градусов, а в дымоходе – до +150-200 градусов. Таким образом, солидная часть тепла просто улетает наружу.
Прямое сгорание дров применяется во многих отопительных агрегатах:
Твердотопливные пиролизные котлы могут использовать несколько видов топлива, в том числе отходы деревообрабатывающего производства и сельскохозяйственной переработки.
- Твердотопливные котлы;
- Печи-камины;
- Камины с водяными контурами.
Главным преимуществом данной методики является то, что она отличается простотой – достаточно создать камеру сгорания и организовать отвод продуктов сгорания за пределы оборудования. Единственным регулятором здесь становится дверка поддувала – регулируя просвет, мы можем отрегулировать интенсивность горения, тем самым воздействуя на температуру.
В пиролизном котле, собранном своими руками или купленном в магазине, процесс сгорания топлива идет несколько по-другому. Дрова здесь сгорают при низкой температуре. Можно сказать, что это даже не горение, а медленное тление. Древесина при этом превращается в подобие кокса, одновременно выделяя горючие пиролизные газы. Эти газы отправляются в камеру дожигания, где сгорают с выделением большого количества тепла.
Если вам кажется, что данная реакция не даст особого эффекта, то вы глубоко заблуждаетесь – если заглянуть в камеру дожигания, то здесь будет видно ревущее пламя ярко-желтого, почти белого, цвета. Температура сгорания – чуть выше +1000 градусов, а тепла в этом процессе выделяется больше, чем при стандартном горении древесины.
Для того собранный своими руками пиролизный котел смог показать максимальную эффективность, необходимы дрова с низким содержанием влаги. Влажная древесина не даст оборудованию выйти на полную мощность.
Реакция пиролиза знакома нам еще со школьного курса физики. В учебнике (а может и в лабораторном кабинете) многие из нас видели интересную реакцию – древесина помещалась в стеклянную запечатанную колбу с трубкой, после чего колба нагревалась над горелкой. Через несколько минут древесина начинала темнеть, а из трубки начинали выходить продукты пиролиза – это горючие газы, которые можно было поджечь и понаблюдать за желто-оранжевым пламенем.
Аналогичным образом работает и пиролизный котел, собранный своими руками:
На одной загрузке топлива пиролизные котлы работают около 4-6 часов. Так что большим и стабильно пополняемым запасом дров стоит озаботиться заранее.
- В топке разжигаются дрова до появления устойчивого пламени;
- После этого доступ кислорода перекрывается, пламя гаснет почти полностью;
- Запускается дутьевой вентилятор – в камере дожигания появляется высокотемпературное пламя.
Устройство пиролизного котла довольно простое. Основными элементами здесь являются: камера сгорания, в которой складированы дрова, и камера дожигания, в которой сгорают продукты пиролиза. Передача тепла в отопительную систему осуществляется через теплообменник
В схеме пиролизного котла ему уделяется особое внимание
Все дело в том, что теплообменники в пиролизных котлах, собранных своими руками, устроены не так, как в газовом оборудовании. Продукты сгорания с воздухом проходят здесь через множество металлических труб, омываемых водой. Для увеличения эффективности котловая вода омывает не только сам теплообменник, но и все другие узлы – здесь создается своего рода водяная рубашка, которая отбирает излишки тепла от раскаленных элементов котельного агрегата.


















































