Способы установки турника
Возможны разные способы монтажа. Выбор зависит от планировки помещения, вида турника.
Перед работой нужно разработать схему – пусть наглядную, с точными размерами. Это поможет правильно составить перечень материалов.
Монтаж изделия на стену
При необходимости монтажа на стену, выбирают наиболее надежные крепления. Специалисты советуют выбирать дюбеля или анкерные болты.
Примерный список необходимого для работы:
- Анкера/дюбеля, 8-10 миллиметров в диаметре.
- Строительный уровень. Необходим для ровной установки.
- Дрель.
- Карандаш.
Инструкция по монтажу проста.
- Распакуйте оборудование (если оно новое). Внимательно изучите комплектацию – за несоответствие с перечисленной на упаковке, есть возможность вернуть изделие в магазин или заменить.
Элементы крепления идут в комплекте, пренебрегать ими не стоит. Если анкера, дюбеля или крючки есть в коробке – на них и производится монтаж.
2. На металле есть отверстия для крепления на стене. Нужно замерить, на каком расстоянии друг от друга эти отверстия.
Есть большие отверстия, через которые выполняется основное крепление, поменьше – для «подстраховки» и прочного сопряжения со стеной.
3. На стене карандашом отмечают места основных точек крепления. Их выравнивают по уровню.
4. Дрелью сверлят отверстия. Для дюбилей потребуется примерно сантиметр глубины.
Убедитесь, что на месте «дырок под болты» нет электрической проводки.
5. Инвентарь подвешивают на болты, неплотно. После проверяют по уровню, зрительно убеждаются, что изделие видит ровно, можно закрепить болты окончательно, чтобы они не прокручивались.
Как закрепить распорный турник между стен
Распорный турник выглядит просто – это не «навороченная махина» с множеством ухватов, это обычная перекладина. Закрепить её просто – просверлив две дыры, вогнав трубу глубоко в стену. Такое редко нравится – остается два повреждения на стенах, которые при ремонте придется заделывать, после где-то повторять с целью установить перекладину снова.
Чтобы таких проблем не возникало, существует распорная конструкция. Её недостаток – на стенах остаются вмятины. Их выровнять легче, чем заделать серьезные дыры.
Как влитая конструкция из металла встанет между стенами из плотного материала – бетона, кирпича.
Просто установить распорную конструкцию. Метки выравниваются по уровню, замеру от углов стен, после распорки фиксируют на отметках. Прочно, готово к нагрузкам.
Выносливостью распорная конструкция похвастаться не может – выдерживает всего 100 килограммов
Важно учесть, при резких движениях масса ощущается большей – элементарные правила физики. Для кувырков, спортивных подтягиваний такое приспособление могут использовать люди массой 40-80 килограммов
Турник в дверном проеме
В дверном проеме устанавливают распорные устройства. Перекладину устанавливают без дополнительных приспособлений. Специалисты советуют использовать распорки.
Кроме распорных есть другие конструкции, которые можно установить в дверном проеме. Их монтаж требует больше умений и материалов.
Список материалов:
- Анкера или дюбели.
- Дрель.
- Карандаш.
- Дополнительные крепежные элементы.
План установки прост:
- Произвести замеры, карандашом сделать отметки, просверлить дрелью отверстия.
- Происходит закрепление дополнительных крепежей, после – неплотная установка турника.
- Проверяется равновесие, равноудаленность снизу и сверху. После подтверждения правильности установки – анкера, дюбели затягиваются.
- Если турник состоит из нескольких частей, которые нужно навешивать друг на друга, после затягивания болтов устанавливают остальные части, ухваты, прочее.
В дверном проеме
Установка турника с закреплением на потолке
Крепление на потолке наиболее удачно с точки зрения интерьер-решений – остается больше свободного места на стене. Выполняется такая установка сложнее.
Наиболее разумно – использовать анкерные болты. Опора в четырёх точках. План работы аналогичен стенному монтажу, при этом не нужно выравнивание по уровню.
Насколько безопасно крепить турник на потолок? Это зависит от веса оборудования, качества болтов, правильности проведения работ. Качество потолка скажет о многом. Материал, из которого он сделан, обязан быть прочным. На деревянный потолок монтаж не производят.
К потолочной установке обращаются редко по причине страха падения конструкции. На прочном потолке, при правильно проведенной работе (умении обращаться с анкерными болтами), турник выдержит 300 килограммов.
Потолочное крепление
Как сделать турник для квартиры своими руками — фотоотчет
Даже для самой сложной настенной модели достаточно 2-2,5 метра профильной трубы и около 1,5 метра круглой. Чтобы сделать турник для дома своими руками, предварительно распечатан листок с выбранной моделью и размерами.
Для каркаса использована профилированная металлическая труба 20*30*3 мм, для перекладины и «ручек» — остаток от карниза для штор советских времен. Труба тонкая, но до сих пор выдерживает. Для начала при помощи болгарки профильную трубу распилил на куски нужной длины.
Начало — нарезаем трубы на куски нужной длины, запиливаем угол упоров

На схеме нет угловых упоров, они сделаны «на глаз». Угол — около 50°. Далее дело за малым — сварить. При помощи инверторного сварочного аппарата это не слишком сложно. Тем более что труба имеет толстую стенку: 3 мм варится нормально.
Получились две половины каркаса в виде буквы «Г» — их надо соединить перемычками. Чтобы стойки каркаса были параллельны, используем планки, которые фиксируют детали на одинаковом расстоянии. Заодно из обрезков трубы из нержавейки внизу привариваем ручки, за которые будем держаться при прокачке пресса.
Чтобы расстояние между стойками было одинаковым, используем рейки

Для плотного примыкания круглой трубы и прямоугольной, в стойке болгаркой выпилен полукруг. Пришлось дорабатывать напильником, но прилегание очень хорошее. Осталось обварить.
Оформление примыкания круглой и прямоугольной трубы

Чтобы приварить к круглой трубе рукоятки для узкого хвата, в отрезках трубы тоже формируем выемки. Варить их сложнее — толщина трубы значительно меньше. И вообще, под сварку нержавейки идут другие электроды. Из-за недостатка опыта швы получились некрасивые, но без явного брака.
Дальше надо согнуть трубу по краям. Для этого в трубу вставляем прут меньшего диаметр, берем газовую горелку, разогреваем место сгиба, сгибая понемногу. Согнуть надо на 30°. Для этого на полу мелом нарисовал угол, сгибая сверялся по начерченным линиям.
Добавляем «держалки» для узкого хвата, сгибаем и можно красить

На болгарку надеваем наждачный круг, зачищаем места сварки. Потом, кругом с меньшим зерном снимаем налет со всей конструкции, дополнительно зашлифовывая швы. Готово под покраску. Краска в баллончике, наносилась в три слоя.
Крюки для навешивания турника тоже сделали своими руками

Для крепления на стену, из полосы металла 15*4 мм сделаны крюки. Согнуть было непросто — зажав в щипцах целый кусок, удалось загнуть с двух сторон. Готовые крючки отрезали по нужной длине и просверлили отверстия под дюбели. Использовано сверло диаметром 8 мм, рассверлены на 12 мм под шляпки крепежа. Крюки зачищены и покрашены той же краской.
Перед тем как сделать турник, определитесь с местом где его будете вешать

Почти все готово. Осталось сделать подушки под плечи. Для основания взяты куски фанеры, на них — тонкий мебельный поролон в два слоя, обтянутый экокожей с отверстиями. Для крепления кожзама использованы скобы и строительный степлер, но можно воспользоваться и мебельными гвоздями, если степлера нет.
Делаем подушки под плечи

По опыту эксплуатации: крюки на стену стоит делать длиннее, под три дюбеля как минимум. И еще: конструкция была доработана — ручки для узкого хвата в том варианте, что на картинке, неудобны, поэтому приварена еще одна перекладина.

Добавлена перекладина
Самодельный домашний турник получился тяжеловатым — 19,8 кг, но в таком виде он более удобен.
Источники
- https://SuperBody.click/trenazhery/turnik-svoimi-rukami.html
- https://playboyrussia.com/sport/kak-sdelat-turnik-svoimi-rukami-podrobnaya-instrukciya-129651/
- https://kak-sdelano.ru/raznyie-poleznyie-sovetyi/domashnij-turnik-svoimi-rukami
- https://remboo.ru/uchastok/postrojki/turnik-svoimi-rukami.html
- https://vopros-remont.ru/obshhie-voprosy/turnik/
- http://guru-remonta.ru/obshhie-voprosy/turnik-domoj.html
- https://stroychik.ru/raznoe/turnik-svoimi-rukami
- https://gipsohouse.ru/walls/remont/12174-kak-bystro-i-prosto-povesit-turnik-na-stene-vybor-instrumentov-dlya-raboty-etapy.html
- http://DekorMyHome.ru/remont-i-oformlenie/domashnii-tyrnik-svoimi-rykami-cherteji-shemy-foto.html
- http://lenpas.ru/stati/turnik-svoimi-rukami-chertezhi-kak-sdelat-doma-3-v-1-brusya-press.html
- https://www.forumhouse.ru/journal/articles/8378-shvedskaya-stenka-turnik-i-brusya-svoimi-rukami
Как сделать П-образный турник с опорами из бруса
В этом случае потребуется массивный брус, бревно или доска для стоек и планка круглого сечения для перекладины. В качестве последней лучше использовать не только что срезанные и оструганные ветки подходящего размера, а качественное покупное дерево, прошедшее камерную сушку, причем твердых пород – дуб, бук, вяз, орех. Заменить такую перекладину можно металлической трубой.
Необходимые материалы для турника с приведенной выше схемы:
- брус 100х100 мм или кругляк диаметром 100…120 мм;
- кругляк или труба диаметром 30…35 мм с длиной 1,2 м и более;
- цементный раствор с добавлением шлака или щебня для бетонирования опор;
- скобы или фиксаторы для крепления перекладины.
Дополнительно можно выполнить раскосы для усиления конструкции.
Важно: если расстояние между опорами перекладины составляет более 1,2 м, использовать деревянную планку не стоит, слишком велик риск ее повреждения при неравномерных нагрузках!
Выполнение работ:
подготовить ямы для установки столбов. Заглубление должно быть не менее 0,5 м, при увеличении веса/роста пользователя необходимо увеличивать и заглубление. Так, для турника с высотой перекладины 2,2 м и выше лучше заглубить столбы на 0,7…0,8 м
Обратите внимание, глубина скважины под стойку должна быть на 10…15 см больше, чем планируемое заглубление;
на дне ямы устроить подушку из смеси песка и щебня, чистого песка или щебня, бутового камня и других подобных материалов толщиной 10…15 см. Желательно выполнить трамбовку;
стойки, обрезанные до нужной высоты, обернуть в нижней части гидроизолирующим материалом (рубероид) по битумной обмазке и установить по уровню в ямы
Чтобы столбы не покосились, подпереть их временными укосинами;
забетонировать стойки и дождаться набора бетоном прочности не менее 50% (3…7 дней в зависимости от погоды);
установить горизонтально перекладину. Способ крепления может быть любым – от укладки кругляка в вырубленные пазы с последующей обвязкой канатом до скоб. Если в качестве стоек использовались стволы деревьев, логично подобрать участки с естественной развилкой.
При наличии деревьев, которые не жаль портить креплением скоб, можно использовать вариант с одной стойкой или креплением перекладины на двух расположенных рядом стволах. В последнем случае обязательное условие – расстояние между стволами 1,2…1,8 м.
П-образная конструкция может оказаться недостаточно устойчивой, поэтому некоторые мастера предпочитают А-образные опоры.
Данная конструкция – основа для качелей, поэтому в перекрестье А-образных стоек уложен брус. Но с тем же успехом можно уложить круглую перекладину, закрепив ее обвязкой, скобами или саморезами.
Еще один способ увеличить устойчивость – добавить к турнику брусья или второй турник с большей или меньшей высотой перекладины.
В представленном варианте стойки сделаны из сдвоенной доски 100х25 мм, для перекладин использованы металлические трубы, а их крепление выполнено путем прорезания отверстий в стойках.
Размеры турника из нескольких частей можно найти на одном из представленных ниже чертежей.
Схемы и размеры
Схемы турников — вот что важно. Важны диаметры труб, толщина стенок
Это действительно важно, а размеры приблизительны. Они могут меняться в зависимости от роста и размеров человека. Обычно они даны под «средний» рост и средние размеры грудной клетки. Если у вас параметры больше, чем «средние», увеличивайте размеры так чтобы вам было удобно.

Эту модель называют три в одном (3 в 1), так как она позволяет тренировать почти все мышцы
Настенные модели
Одни из самых удобных и функциональных — настенные турники. Они есть более громоздкие и сложные по конструкции, есть совсем простые. Начнем с тех, что посложнее.
На рисунке турник, на котором можно заниматься в двух положениях. На картинке справа — положение для проработки пресса, слева — для проработки рук, спины и грудных мышц. Указанную конструкцию можно усовершенствовать. На схеме справа есть две перекладины, которые используют для работы с узким хватом. Можно установить дополнительные перекладины для среднего, а крайние использовать для «нормального». Широкий хват обеспечивают торчащие по бокам ручки. Более удобно, если они имеют наклон порядка 30°.

Две схемы настенного турника под разный хват. Разные размеры, похожие конструкции
Переворачивать турник не всегда удобно, поэтому придумана другая конструкция — с рукоятками на передней планке. Она менее массивна, требует меньшего количества труб. Но прокачивать пресс придется на другом тренажере. Этот такой возможности не предоставляет.

Схема и размеры снятые с готового настенного турника
Несмотря на недостатки, вышеприведенная конструкция много раз повторена. Она проста, надежна, занимает немного места, поэтому популярна. Размеры немного корректируют, оставляя диаметры труб и толщину уголков без изменений или увеличивая толщину стенок. Пример — на фото ниже.

Это самодельный вариант, сделанный по фабричной модели
Есть еще более простая конструкция. Это только одна перекладина, на которой можно только подтягиваться. Но эта конструкция — одна из наиболее компактных. Ее можно повесить над дверным проемом и она не будет мешать, не будет привлекать внимания. Сделать турник такой конструкции имеет смысл, если для размещения более серьезного снаряда нет места или есть шведская стенка.

Размеры — под небольшой рост
Наддверные конструкции — одни из самых компактных. Меньше места занимают только те, которые устанавливаются в дверном проеме или между двух близкорасположенных стен (тут вообще нужна только труба, под которую сделаны особые крепления).
Турники для двора
Во дворе обычно ставят более сложные конструкции: нет необходимости экономить место, поэтому делают как можно более комфортную модель. При этом стоит подходить к вопросу взвешенно: чтобы сделать турник надежным, нужны трубы с солидной толщиной стенки, а они недешевы. Поэтому раз уже есть стойки и перекладины, можно сделать шведскую стенку и крепление для качелей — чтобы могли и дети играть, и взрослые тренироваться.

Турник для улицы: чертеж с размерами
Обратите внимание на то, что стойки попарно соединены перемычками. Перемычка закапывается в землю и служит для стабилизации положения при боковых нагрузках
На что еще обратить внимание — на глубину, на которую закопаны столбы. Если земля склонна к пучению (глина и суглинки), закапываться желательно ниже глубины промерзания. По средней полосе России это около 120-130 см. Для того чтобы стояли стойки надежно, к подземной части можно перпендикулярно приварить куски труб. Это усложнит монтаж, но столбы точно не расшатаются.
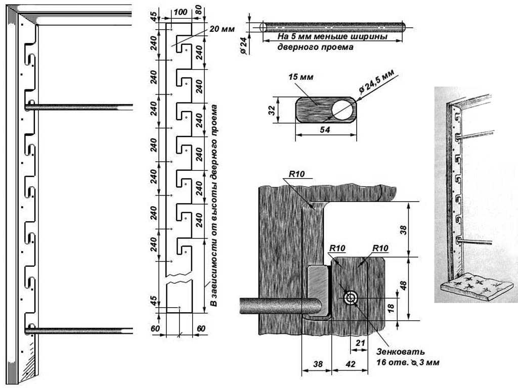
Турники в дверной проем
Распространенные конструкции турников для дверей показаны на рис. Для самостоятельного изготовления они мало пригодны: на изогнутые штанги-«рога» приходятся, из-за большого отношения плеч рычага, высокие нагрузки, поэтому делать их нужно из спецстали
И, обратите внимание – сборка только на болтах. Сварочные швы под такими нагрузками ненадежны

Турники в дверные проемы промышленного производства
Еще хуже обстоят дела с нагрузками на узел крепления к стене. Там отношение плеч доходит до (10-15):1 и нагрузки возникают колоссальные, а стена в этом месте, как правило, ослаблена. Если же главный в доме атлет, уходя, забудет снять турник, а слабой половине понадобится закрыть дверь, то недолго и до травмы: в процессе установки/снятия железина под 20 кг весом неизбежно оказывается над головой. В общем, домашние турники такого типа скорее маркетинговый ход.

Неудачные способы крепления турника к стенам и потолку
Полезнее и уж точно надежнее будет самодельный турник, устанавливаемый в дверной проем или коридор в распор или на боковых держателях. Тут есть определенные тонкости. Во-первых, съемная перекладина (гриф), вкладываемая в U-образные карманы (слева на рис.) неизбежно даст люфт. Заниматься, когда планка ходит в руках, неудобно и не весьма полезно, но, что хуже – резкие мгновенные нагрузки передаются строительным конструкциям. Которые на них ну никак не рассчитаны. Жесткое крепление к потолку (в центре) немногим лучше; человек-атлет – не люстра. И уж совсем недопустимо мягкое крепление с сосредоточением нагрузок, справа.

Надежные крепления домашних турников в проемах
Любительская конструкция турника в проеме приведена на поз. 1 рис. Подпятники установочных узлов – стальной лист 5 мм. Возможность съема грифа обеспечена удлиненной прорезью в нем с одного конца; сама перекладина короче ширины проема. Продольные прорези в обоймах установочных узлов обеспечивают плотный зажим грифа при стяжке болтами. Условия надежности такой конструкции таковы:
- От конца удлиненной прорези до края грифа – от 30 мм;
- Прорези в обоймах должны заходить за задние края отверстий под болты, но не более чем на 3-4 мм;
- Цельные края установленного грифа должны выступать за внутренний край прорезей в обоймах не менее чем на 30-40 мм.
Недостаток этой конструкции – «патроны», торчащие из стен прим. на 120 мм. Конструкция с зажимом перекладины гайками (поз. 2) позволяет уменьшить вылет узлов крепления до 50-60 мм, но все равно торчит, и резьбовые штыри травмоопаснее обойм из отрезков труб.
Оптимальная по механике и эргономике конструкция турника в проеме – с креплением грифа на бонках, поз. 3. «Саморез» там показан условно, на самом деле это болт от М12 в анкере, заглубленном в бетон не менее чем на 130 мм. Преимущество такого крепления также в том, что для установки/снятия грифа не нужен инструмент: резьба винтовых распоров в одного конца правая, а с другого – левая. Для установки гриф ставят по месту, распоры вывинчивают, пока те не упрутся слегка в бонки, и поворачивают перекладину руками. Только не переусердствуйте: фиксация «мертвая» и при небольшом провороте; если своими «клешнями» приложится здоровый дядя, то, неровен час, снимать турник придется болгаркой. Недостаток системы на бонках – требуются довольно сложные токарные работы.
И детям!
Вообще, турник для взрослых в проеме это, как говорится, паллиатив. Другое дело – начинающие крепыши. Статические нагрузки от них меньше взрослых соответственно весу, а динамические – на порядок, т.к. здесь действует квадрат мгновенной скорости перемещения частей тела. Поэтому детский турник в дверном проеме допустимо прикреплять непосредственно к раме двери, а его несущую конструкцию выполнять из прочного мелкослойного дерева лиственных пород.

Детский турник – шведская стенка в проеме двери
Схема и чертежи детского турника такого типа, совмещенного со шведской стенкой, приведены на рис. Трубы – сталь 20х1,5; деревянные детали – дубовая доска от 20 мм. Достаточная прочность и надежность обеспечены большим количеством точек крепления. Конструкция и соотношения размеров деталей установочных узлов позволяют выполнять и некоторые гимнастические упражнения.
О рукоятках
Крепко сидящие на местах и ухватистые рукоятки самодельных турников получаются из термоусаживаемых трубок (ТУТ) диаметром на 20-30% больше наружного диаметра трубы. Продаются ТУТ в радио- и электротехнических магазинах; усаживаются прогревом бытовым феном на полной мощности. Один слой усаженной ТУТ имеет толщину ок. 1,5 мм; слоев может быть несколько. Рифленые рукояти можно получить с помощью узких колец из тех же ТУТ. В общем, дешево и сердито.
Виды турников, которые можно сделать своими руками
Конструктивно турник можно разделить по 2 критериям:
- По месту установки — в помещении или на улице.
- По функциональности — это будет только турник, или с ним будут совмещены другие снаряды.
Рассмотрим эти отличия подробнее.
Виды турников для помещения и для улицы
Если сделать турник нужно для квартиры (комнаты), доступны такие варианты:
- Настенные — крепятся к «чистому» участку стены. Конструктивно сделаны в виде опорной части (которая крепится к стене болтами) и вынесенной от нее перекладины.
- Настенные — над дверным проемом. Конструктивно то же, что и обычный настенный турник, только устанавливается над дверным проемом. Для пользователя удобнее тем, что ноги не будут упираться или цепляться за стену при подтягиваниях.
- Угловые. Еще один настенный вариант. Турник монтируется на две смежные стены, образующие угол. Преимущество по сравнению с простой настенной конструкцией — такое изделие более надежно держится на стене.
- Раздвижные, монтируются в дверной проем. Самостоятельно такое изделие сделать получится не у всех — в изготовлении оно сложнее. Еще один минус — некачественная конструкция может не выдержать большого веса. Преимущество — в простоте установки и быстром демонтаже.
- Навесные между двумя стенами, расположенными близко друг к другу. Вешаются там, где от стены и до стены не более 1-1.5 метров.
- Съемные между двумя стенами, расположенными близко друг к другу. Вариант предыдущего пункта. В этом случае сама перекладина не крепится к стенам. В них врезаются пазы, в которые можно поставить перекладину. После выполнения упражнений турник снимается, пазы остаются на стенах.
- Навесные для шведской стенки (если в помещении она есть).
- Потолочные. Крепятся к потолку.
Если турник нужно соорудить для улицы — доступны такие варианты:
- Перекладина между двумя деревьями (если на расстоянии до 2-2.5 м друг от друга растут 2 толстых дерева).
- П-образный отдельно стоящий турник.
Виды по функциональности
Самый простой вариант исполнения — обычная перекладина, прикрепленная к подходящей поверхности. На таком турнике можно просто подтягиваться.
Конструкцию можно модернизировать несколькими способами:
- Добавив на перекладину несколько ручек, позволяющих браться разным хватом. Разный хват позволит по-другому распределять нагрузку на мышцы.
- Добавив брусья.
Пошаговая инструкция по изготовлению
Чертеж турника 3 в 1
Обязательно выбирают стойки правильного сечения или крепят турник к надежным стенам, толстым стволам. Предварительно делают чертеж настенного турника с приспособлениями 3 в 1 или 2 в 1. Для одинарной напольной или наддверной перекладины также разрабатывают схему сборки и установки элементов.
Поэтапный процесс:
- на стены или стойки приваривают гнезда для фиксации торцов перекладины;
- если пластины выполнены из дерева, их врезают в дверной добор или крепят к стенам анкерами на нужной высоте;
- примеряют и обрезают планку по размеру.
Перекладину ставят в подготовленные гнезда. Точность монтажа проверяют уровнем, если использованы стойки, применяют отвес. В уличных условиях дополнительно монтируют небольшой навес или козырек над местом тренировки.
Турник-брусья
Турник-брусья – представляет собой две параллельные перекладины
Брусья изготавливают под узкий и широкий ухват, такие приспособления вместе с перекладиной для подтягиваний обойдутся дешевле магазинной модели.
Снаряд представляет собой две пары вертикальных труб. Расстояние между парами равно 1,5 м, а между противоположными элементами — 0,7 – 0,9 м. Их бетонируют в ямах глубиной не меньше 50 см. К двум стойкам приваривают жесткие перекладины из круглой трубы.
Турниковую планку фиксируют на одной из пар труб. Ее делают соответствующей высоты. Для детей принцип изготовления снаряда аналогичный, учитывают рост ребенка, величину его ладоней.
В дверном проеме
Такую перекладину делают одинарной, ее не совмещают с брусьями, гимнастической стенкой. Компактные конструкции делают так, чтобы они не мешали передвижению людей между комнатами.
Модели дверного турника:
- стационарные;
- съемные;
- раскладные.
Первый вид предусматривает неподвижную фиксацию несущей перекладины. Для ее установки используют круглые металлические трубы, куда вставляют торцы. Для съемных монтируют детали с выборкой в верхней части, чтобы при необходимости снять планку. Раскладные имеют сложное строение. В сложенном виде конструкции практически не выступают над проемом или внутри него.
Между двумя стенами
Конструкцию между стенами устанавливают в коридоре
Такие конструкции чаще всего ставят в коридоре, где позволяет ширина помещения. Сбоку иногда ставят раскладную конструкцию брусьев, монтируют стенку для гимнастики. На турниковой планке можно повесть съемную модель детских качелей.
Снаряд для подтягивания в области коридора не занимает много места, занятия не будут мешать другим членам семьи. Фиксируют торцы на стенах глухим или съемным способом. Используют трубные крепления или накладные гнезда из железа, фанеры, древесины. Для монтажа берут дюбели или металлические анкеры длиной не меньше 100 – 150 мм. Накладки декорируют под цвет стен или оставляют контрастного колера.
Потолочный
Конструкцию выбирают, если в комнате высокие потолки, чтобы планка получилась на требуемой по нормам высоте.
Стандартные детали:
- Труба круглого сечения для изготовления перекладины, ее длина обычно 1,0 – 1,2 м. Торцы планки на расстоянии 20 см от края можно загнуть под углом к полу комнаты.
- Две короткие трубы (15 см) для выполнения хвата разного вида приваривают перпендикулярно планке. Расстояние между ними — 20 – 25 см.
- Потолочные элементы для фиксации, например, пластины.
- Квадратный профиль для стоек.
К шведской стенке
Турник для шведской стенки
Такой способ используют, если в комнате уже стоит стенка, а ее высота позволяет устроить планку турника на должном уровне. Учитывают промежуток до потолка.
Крепежные пластины изгибают по форме стеновых штанг, их берут первоначальной длины около 60 см. Загнутая часть полностью обхватывает перекладину стенки, допускается запас по охвату в несколько сантиметров.
Если высота потолка в квартире 2,5 – 2,55 м, некоторые упражнения на турнике сделать не выйдет. Перекладину на шведской стенке совмещают с кольцом для баскетбола, канатом для лазания, грушей для бокса.
Уличный вариант
Используют металлические, деревянные опоры, ставят бетонные столбы. На торцах подземной части железных и деревянных стоек приваривают или присверливают поперечные или крестовые элементы. Их бетонируют вместе со стойками, чтобы придать дополнительную устойчивость столбам против вырывания. Монтаж усложнится, но стойки будут надежно стоять длительное время.
Снаружи используют подкосы в виде растяжек-тросов, жестких наклонных элементов, раму в углах фиксируют диагональными раскосами. При сборке под болты сверлят отверстия на 0,5 мм шире метизов. Концы болтов после завинчивания гаек срезают, шлифуют болгаркой.


















































